Neo-Gothic church
Add to favorites

Neo-Gothic church

$4,000,000
4802 6th Avenue, Brooklyn, NY, USA, 11220
Category
Square feet
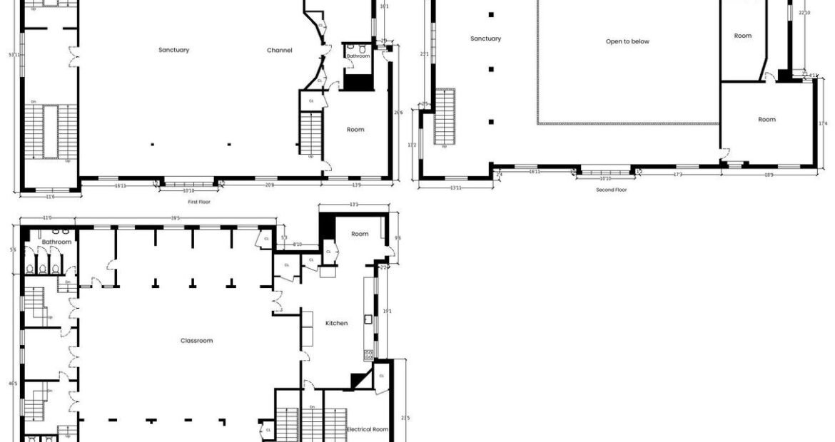
6,000 sq ft
Listing type
Property type
City/Town
Borough/County
Neighbourhood
ZIP code
11220

Description

Welcome to 4802 6th Avenue, a beautiful Neo-Gothic church and ancillary manse on a prime corner in the Central Sunset Park Historic District. This opportunity has multiple avenues wherein a knowledgeable investor could utilize the unique site characteristics to achieve above-market returns by any or all of the following methods:

1. Since it is in a historic district, as well as a QCT, by converting the interior to 18,000 residential SF (23,400 with UAP) you would qualify for Historic Tax Credits (additional information on page 12) resulting in the reimbursement of up to 50% of your renovation/development costs;

2. The City of Yes changes for historic district Air Right Transfers (additional information on page 10) allow you to sell your air rights to 61 (!) different lots on or around this block;

3. The property is located in an Opportunity Zone (OZ) allowing for the deferment of current and future capital gains taxes.

These unique characteristics would also work well for an end-user, such as a church, school, club, or non-profit.

Feel free to reach out to to discuss these possibilities, to arrange a showing, or to make an offer.